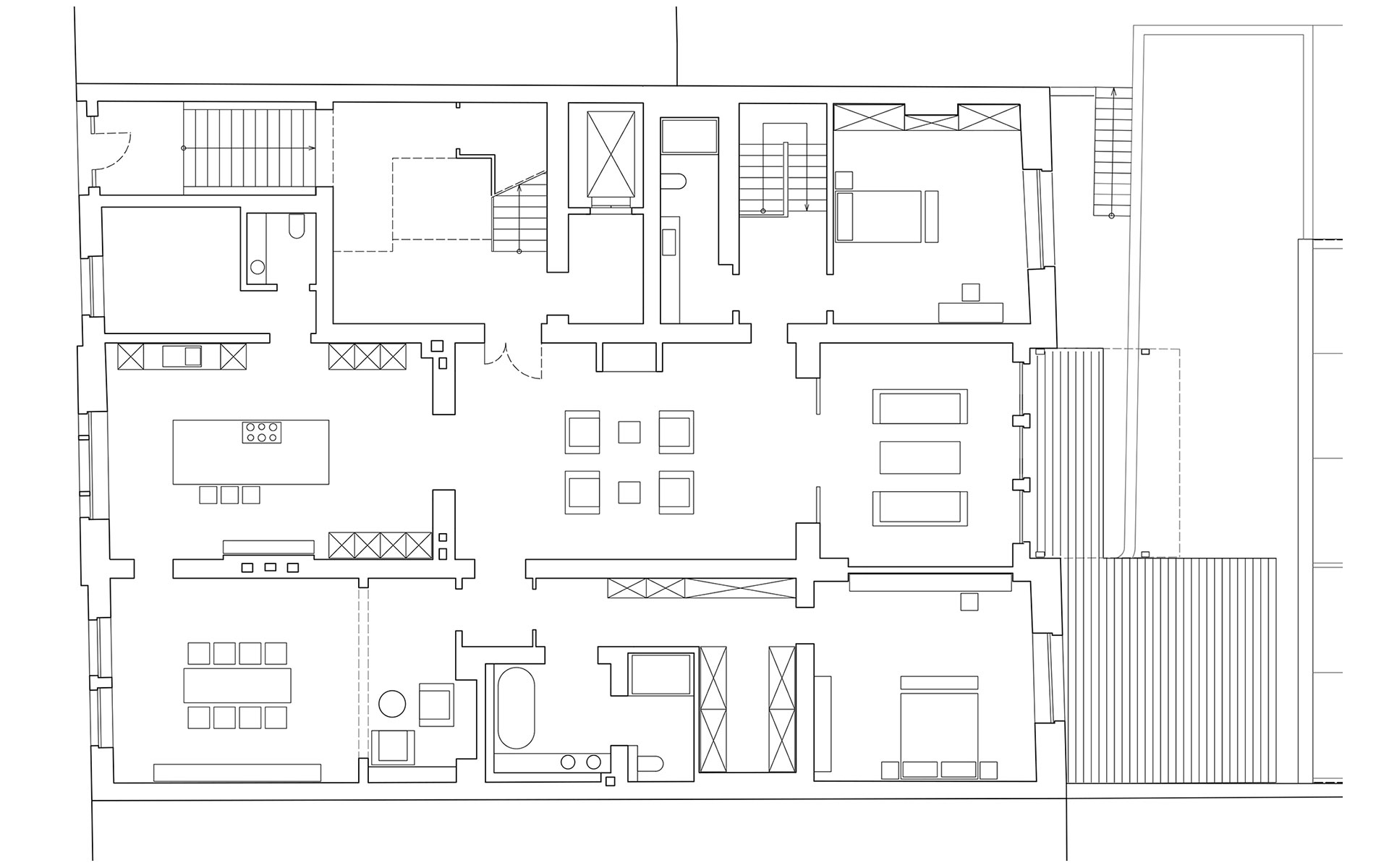
Stadtpalais am Kaiserteich

Die denkmalgeschützte Immobilie „Elisabeth 12“, im Jahre 1898 erbaut und in den 60er-Jahren aufgestockt, vermittelt mit der neogotischen Fassade und dem großzügigen Vestibül ein Gefühl von Flair und Eleganz. Auf fünf Ebenen entstehen großzügige und individuelle Stadtwohnungen mit ausgefallener Ausstattung, ganz nach Wunsch der Käufer. Im Hofbereich versorgt eine neue Tiefgarage das Gebäude ausreichend mit komfortablen Stellplätzen. Besondere Herausforderungen sind der vorbeugende Brandschutz und der Schallschutz im Gebäude sowie die komplexe Baustellenlogistik für den Bau der Tiefgarage im Hof.

Auftraggeber · Rhein-Ruhr-Bau GmbH
Planung + Realisierung · EHRICHarchitekten
Fläche · 1.350 m²
Fertigstellung · 2016
Fotos · Annika Feuss